O'Keeffe Residential

The Turretts Charleville, P56 VP95

2 Bed Detached House For Sale

Asking price €100,000

Print additional images & map (disable to save ink)

Photo 1 of The Turretts, Charleville

Telephone:

(063) 23997

View Online:

www.okeefferesidential.ie/1069981

Key Information

Address The Turretts Charleville, P56 VP95
Price Asking price €100,000
Style Detached House
Bedrooms 2
Receptions 1
Bathrooms 1
Size 53.63 sq. metres
BER Rating
Status For sale
PSRA License No. 003877

Additional Information

Residence with full planning permission for two semi‑detached homes.
Planning Ref: 25/5805

Set within one of Charleville’s most prestigious and sought‑after residential enclaves, this rare opportunity offers a residence on a c. 0.23 acre site positioned just off the Main Street in The Turrets—a location long regarded for its privacy, exclusivity, and convenience.

The property currently comprises a semi‑derelict residence together with an adjoining outbuilding. The main dwelling retains its original layout and footprint, while the adjoining structure has suffered a roof collapse and requires full reconstruction.

The property has full planning permission granted for two elegant semi‑detached residences extending to approx. 146 sq m each, this site presents a compelling prospect for developers, builders, or private purchasers seeking a bespoke residential project in a blue‑chip setting.

The property also represents an opportunity to revive a residence using the Vacancy Grant.

The existing residence is arranged as follows entrance hallway, kitchen, dining / living area, sitting room, two bedrooms and a bathroom.

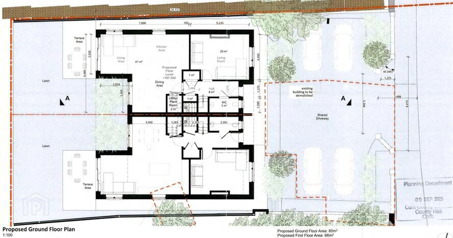
Planning Permission

Planning Reference: 25/5805

Full planning permission has been granted for the construction of two semi‑detached two‑storey residences, each extending to approx. 146 sq m. The proposed homes have been thoughtfully designed to offer modern, spacious living in a highly desirable location with 6V charging points.

Proposed House Layout (per unit)

Ground Floor

  • Entrance hall
  • Living room
  • Open‑plan kitchen / dining / living area
  • Guest W.C.

First Floor

  • Three bedrooms
  • Master bedroom with en‑suite
  • Bathroom

The plans also provide for private rear gardens and dedicated parking to the front, ensuring each home benefits from generous outdoor space and practical day‑to‑day convenience.

 

Features:

  • Prime c. 0.23 acre site in a prestigious residential location.
  • Semi‑derelict residence with adjoining outbuilding.
  • Full planning permission for two high‑quality semi‑detached homes.
  • Proposed floor area approx. 146 sq m per residence.
  • Attractive two‑storey design with modern layout.
  • Private rear gardens and front parking included in plans.
  • Walking distance to Charleville Main Street.
  • Excellent development or investment opportunity.
  • Development levies c. €2000.
  • Vacant property suitable for renovation and vacancy grants

 

Existing Accommodation

  • Hall – 1.75 x 4.6
  • Sitting Room – 3.02 x 3.82
  • Kitchen – 2.2 x 3.5
  • Dining/Living Room – 4.8 x 2.3
  • Bedroom 1 – 2.6 x 2.0
  • Bedroom 2 – 2.6 x 2.8
  • Bathroom – 1.67 x 1.7

Total: 53.63 Sqm / 577 Sq Ft

BER details

BER Rating:

  • O'Keeffe Residential

    O'Keeffe Residential

    (063) 23997

Photo Gallery

Photo 1 of The Turretts, Charleville Photo 2 of The Turretts, Charleville Photo 3 of The Turretts, Charleville Photo 4 of The Turretts, Charleville Photo 5 of The Turretts, Charleville Photo 6 of The Turretts, Charleville Photo 7 of The Turretts, Charleville Photo 8 of The Turretts, Charleville Photo 9 of The Turretts, Charleville Photo 10 of The Turretts, Charleville Photo 11 of The Turretts, Charleville Photo 12 of The Turretts, Charleville Floorplan 1 of The Turretts, Charleville Floorplan 2 of The Turretts, Charleville

Location

Visit www.okeefferesidential.ie for further details.